Upper West Side Apartment

New York, New York | 2022 | 1300 SF | Interior Design | Completed

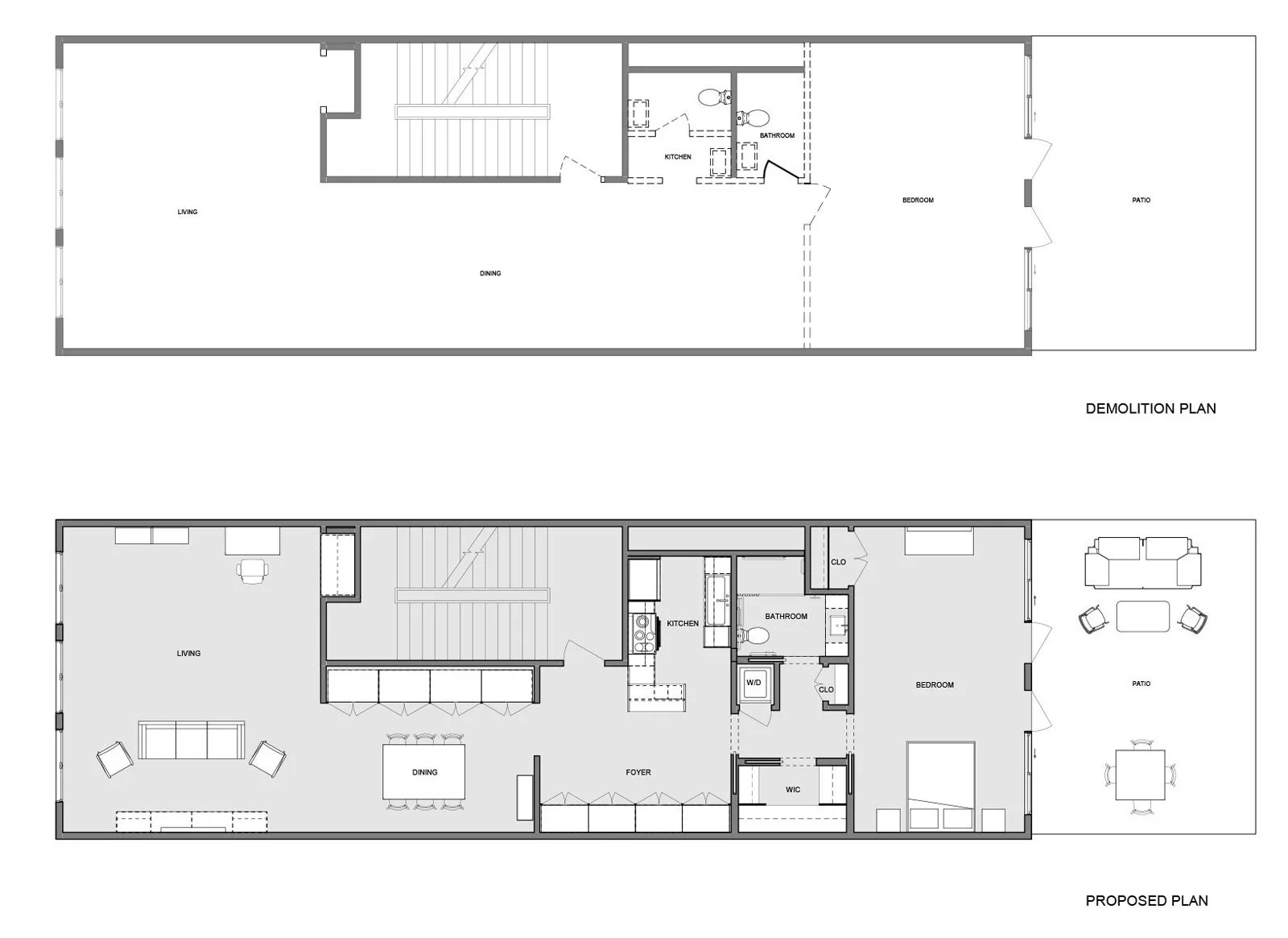
This apartment was design for a client who wanted to create a simple backdrop for their extensive antique collection. We designed a series of custom cabinets to showcase the antiques while concealing day-to day- items. To help maintain the budget the existing ceiling light fixtures were reused and the existing wood floors were refinished instead of being replaced. A brushed bronze finish was used throughout the apartment to provide a contemporary look while referencing the traditional antiques that will be displayed.

Previous
Previous

Kingston Ground

Next
Next

Park Slope Apartment